苹果改版,到处广告贴,今天才注意到楼主的贴,含金量很高,期待更新
顺便问一下,我也在考虑两个卧室往外扩建2米,我才知道3米以内不需要许可,不过看下来可能我们也有移水管的问题。请问楼主,不算装修厨房,只扩建墙体屋顶啥的,应该有的这些,包括移水管,大概花了多少钱呢?
话说楼主在伦敦吗?哪找的这么多报价的师傅都是中国人
有人看我就有动力写哈哈。
回答你的几个问题,首先我们报价是一体的,并没有具体到墙体多少钱屋顶多少钱这样。至于开销我会在最后几篇里总结一下。
我在伦敦,住的地方不少中国人都装修过,在群里一问就有人推荐了。
关于瓦片
扩建部分的木梁都架好之后,就需要订瓦片了。瓦片材质分两种,陶瓷ceramic和粘土clay烧制。 陶瓷的结实一点但是重,粘土的透气性好一点。
这个可以根据个人喜好来,但需要注意的一点是,瓦片还有一个参数叫最小坡度,就是对排水会有影响。坡度太缓的话有些瓦是不能用的,因为后面要压住前面造成仰角,缓坡甚至可能会倒流
我们的屋顶坡度算很缓的了,只有15度,一下限制了很多选择。最后选中一款大片的红瓦,这东西我推荐如果可能的话尽量去展厅看一下,虽然有展厅的厂家不多,但看到送来的实物感觉跟照片真的差好多。
订的时候需要打出10%到20%面积的富余量。至于破损那几乎是不可避免的,我们第一时间把损坏的瓦片做了估算,照片留证,发给厂家申请置换。问题是十几片瓦人家还要收大笔运费,只有去自取了。
另外小J还让我买下面这款透气瓦,塑料质地,里面有气道。初衷是好的,但是后来发现仍然是坡度太缓的问题导致挂不上,水会倒流,不能退货也只好废弃,又是一百多镑。。。
这个瓦拿到手里才发现做工很糙,当然放在屋顶不动它也是可以挡风遮雨的。但是铺瓦的时候包括后期在屋顶作业的时候踩碎了好几块,才知道有多脆。现在要上屋顶都得小心翼翼的,或者铺一块垫板也能避免踩碎。我们订的量刨除损耗将将够用。
铺好之后的效果还算可以。
膜拜。手残党,没这个本事搞装修。买个已经做好的就完了。。哎
写得很好 希望继续更新
那确实是很省事的,不过自己装可以完全规避痛点并充分实现自己的需求也很有意思 ![]()
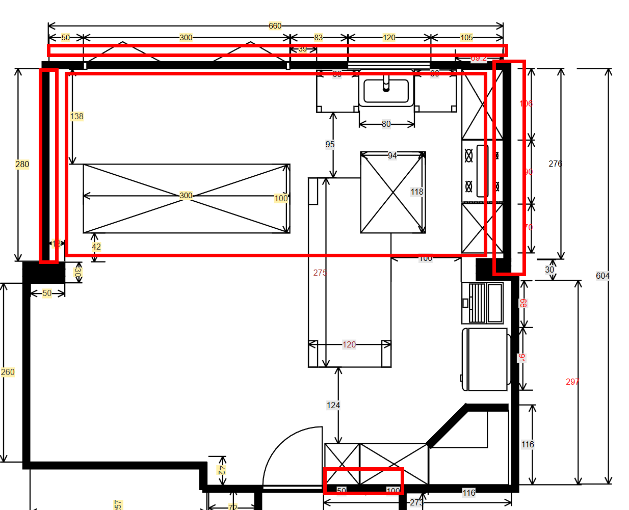
关于council
只要是扩建,council(市政会)就是个绕不开的话题。从最开始画图纸时,我们就向 council 申请了扩建许可。今年开工,也是因为那边的许可只有三年“保质期”。在这期间如果建筑标准有更新,施工就必须按照新标准修改。
看起来好像不是什么大事,但确实给我们带来了不少麻烦。
开工时我们就向 council 通报了,哪怕只是挖一个洞,也算正式开工。这样设计的有效期就不再受限制,什么时候完工都行,即使超过三年,council 那边也不会管了。
之后在施工的各个阶段都要请审核人员来检查,一般会有一个固定的审查员跟进同一个项目。我们的审查员叫 Rebecca。给 council 发邮件时注明 ref number(参考编号),邮件就会被转发到她的邮箱。预约现场检查需要提前 48 小时。
到目前为止我们接待了五次到访。每次他们都会根据图纸和现行的合规标准进行检查,如果有问题会当场指出,我们需要修改后拍照发过去存档,才能继续下一步施工。
第一次是在地基挖好,打水泥之前,来检查地基深度,提出在左邻一侧挖的不够深。其实当时师傅还没挖完,继续挖到深度过关。
第二次是水泥打好、开始砌墙,提出在墙基连接邻地土层的地方要刷一层防水漆,防止潮气渗透。并且提到门的下面需要15公分落差以免水进到屋内,这个我们实在做不到,设计就是要内外尽可能持平的。解决方案就是加一条排水沟,就不会担心渗水了。
第三次是在钢梁和外墙架好之后,她来检查结构,确保几个支撑点足够牢固。她还提出屋内的墙体需要加固,有一个废弃的门洞要用砖墙封死,以增强承重力。
第四次是在扩建部分的一侧地面保温和防水铺好、屋顶斜梁架好之后,来检查保温层厚度。这次 Rebecca 休假,来了个男审查员。他对保温提出质疑,说前几年标准改了,保温层要比我们铺的再厚 4 厘米。真是无语——这种东西对安全根本没影响,而且标准说改就改。没办法,council 的规定就是金科玉律,想最后拿到他们的认证,只能照做。
在这期间我们还纠结了很久关于防火的规定,比如炉子和墙体的距离、石膏板的防火等级。来来回回发了很多邮件确认。这种事最怕的就是都做完了才被指出不合规,要拆掉重改,那真是欲哭无泪。
听小J说,关于 council 的故事还不少。据说最要命的情况是老员工带着学徒一起来检查。为了给后辈树立威信,他们不仅不会放松,标准还会更加苛刻。你也没办法求情,只能祈祷别被挑出那种不好改的问题了。
而最后一次就在今天,来了之后检查了厨房的通风,屋顶的斜度,确认了我们还要找注册的电工出具证书,井盖要买好盖上,另外还有一个施工方和设计师都签字的文件需要扫一份pdf给council 备案。前两天小J过来签了。之后就可以出最后的认证了,证明我们的扩建都是符合建筑标准的,以后卖房的时候也受官方承认。
这些只针对扩建的部分,室内装修他们就不检查了。
关于室内翻新
前面说过为了架钢梁把二楼两个卧室和卫生间的墙根开了很多大洞。屋里灰尘覆盖。可怜妹妹还住在其中一间。本身那间卧室就很老旧了,我们早计划要翻新,而且反正也要修补墙体。于是找小J单独报了价,把妹妹先搬到另外一间小屋当临时卧室。我们自己用蒸汽机铲掉了旧墙纸。 在外面架屋顶的时候,同步开工。
这样是节省了一些成本。工人师傅在等厨房一些建材的时候可以先做楼上,两个项目能辅助平行进行。工具也都是现成的了。
具体包括把天花板铲平,暖气位置从内墙挪到窗下,加四个插座,换新的窗户,批灰刷漆,换新门,安射灯,踢脚线,铺地板。
这些都有条不紊的进行,在临近收尾的时候我们觉得反正都开工了,卫生间也是破旧的一批迟早得换,干脆一起搞了,于是又加了卫生间和走廊的翻新项目,小J给报了价,具体项目包括:
拆墙,建新墙加滑动门,安浴缸,淋浴,马桶,洗手池,管线重布,加插座,排气扇,地漏。贴瓷砖,地砖。走廊天花板铲平,批灰刷墙,安栏杆和楼梯扶手,装射灯。原来装热水包的小隔间刷墙。通铺地板。
而妹妹原来的卧室做好之后,她搬回去,我们又加了那间临时卧室的翻新,因为同样要补破坏的墙体。项目差不多就不赘述了。
这些导致翻新厨房时收拾出来的锅碗瓢盆无处安身(一开始用临时卧室当储藏间的)。妹妹搬进临时卧室之后,我们去买了十几个储物箱子,把物件都装进去放到了阁楼上。也好在当时A先生已经换完锅炉,阁楼水箱拆掉之后腾出很大一片空间,使这些杂物得以安身。
时间进入八月份,在开始拆除卫生间及走廊之后,我们的生活也迎来了整个过程中的至暗时刻。
关于生活影响
在扩建开始之后,我们已经做好思想准备,既然不肯搬出去,那就学会跟灰尘和混乱共存吧。在有限的条件下,只能尽量把日子过好一些,即便如此,生活质量还是一路下滑,并在卫生间拆除之后跌倒了谷底。
首先是吃饭问题。
家里一楼之前用车库改成了一间playroom,我们就用它来做战时的厨房和饭厅。冰箱和餐桌挪进来之后就很拥挤了,加上一个备菜的桌子,烘干机,一个放碗碟的柜子,还有从走廊挪过来的鞋架,瞬间变得逼仄不堪。做饭就靠微波炉,空气炸锅和电火锅。洗菜就在楼下卫生间的小池子里,连个洗菜盆都放不下那种。该说不说,屋子的功能性倒是拉满了。
平时买菜就以能烤的食材为主,加以绿叶菜和水果。娃妈还能时不时包个饺子确实很厉害。这期间营养倒也没怎么拉下,虽然泡面也没少煮。
然后是清洁问题。
一开始我就让师傅把洗衣机和洗碗机从厨房挪到了前院车库里,并且接上了水电。在没有正经水池洗碗的情况下,洗碗机帮了大忙。只是每天饭后要把所有脏碗端出来。洗衣服也是如此,虽然不方便但是至少能苟,就很知足了。
而开始架梁之后,二楼原本还能维持整洁的几间屋子墙破无遮,卧室直接变工地。好歹把妹妹挪到书房将就安顿一下。万幸当时学校也放暑假了不用在这种环境下强求规律的作息。就是灰尘无法避免。关上门也无济于事,一天就是一层土。空气里都是灰的味道。这让有些微洁癖的我们很是崩溃。
家里的扫地机器人Maya, 清洁play room里那本来不剩多少的地面都要满负荷运转,整天灰头土脸的我也没工夫理她。不过确实帮我们减少了一些地面灰尘,没被噎死也算命大了。
而家里的猫咪南瓜,也和我们一起经历了这些。白天我们上班上学起码还能躲一下,南瓜就只能被关在起居室里一天。晚上给放出来,他跑到工地里满地打滚,挺高贵的金渐层变身土猫一只,还间接成为了灰尘散播者。我们本来是养在室内,施工期间没法保证关门,被南瓜逃跑了好几次。半夜出去找猫也是家常便饭了。
8月初卫生间被拆除后,我们连洗澡的地方都失去了。那段时间走廊也在刮墙重新批灰,脏到不行,只能待在自己卧室里。晚上没有淋浴,我用一个简易引流装置把洗衣桶装上热水, 在没封顶的厨房,露天的站在桶里用毛巾擦一边身子就算洗了。好在我和娃妈的公司都有淋浴可以在那里洗头。娃们则是周末游泳的时候顺便洗头。不过也就是8月天热我们才可以这样,不然只能要去住酒店了。
这个状态持续了一个多月,直到浴室装好我们才重新找回干净的自己。。。
关于干湿分离
卫生间的设计是一个头疼的问题
虽然面积不大,但是功能性上来说和厨房是家里同等重要的存在。需要设计和留意的地方不比厨房少,算下来"设计密度“比厨房还要高很多。
而旧卫生间的一个最大痛点就是早上的时候洗漱和入厕不能同时进行,效率很低,尤其女儿都长大了更不方便。于是现在流行的干湿分离式设计就被提上了计划。
当然这个不便的前提是我们二楼只有一个卫生间,如果有ensuite的家里不需要考虑这些问题
分离的好处显而易见,内外互不打扰,隐私有保证,而且洗完澡蒸汽不会糊了镜子还需要加热除雾功能。
所以计划就是,把原来的隔墙推掉,向内移半米,内部只保留浴缸和马桶。浴缸转向贴外墙。而洗手池建在原来隔墙那里,变成开放式空间。门改成滑轨式的以节省空间。
拆墙其实也并没我想的那么麻烦,师傅抡起锤子半天就搞定了。
整体图纸定好之后,就是各个部分的设计和选购了
好帖好帖 给楼主大大的赞!!!我们准备新年后开工扩建,现在正在各种筹划准备中,你的帖子太及时了!蹲后续!
![]()
谢谢,希望能帮到有需要的人大家都住上dream house![]()
这房子也挺老的,我记得之前北爱尔兰住的房子是热水是烧tank,然后用的。很老式了。这整个改造总费用要多少?30k能下来吗?
我估计下不来,50k?
伦敦区,现在物价又高,全部算下来,保守预估也要100k起…不知道是不是这样…
坐等楼主分享经验
给楼主鼓掌加油 ![]()
哈哈可以看完再做估计,很多项目我还没写
这位朋友是懂行情的,其实现在我们还没完全弄完所以开销还在上涨中,只能等最后再做估算
关于淋浴
我们浴室拆除之前只有166cm宽,这样如果想横着放下一个浴缸那么只能选160长的,边上会留个缝隙还要填。
有点不甘心觉得浪费了一些空间,但是等师傅拆完瓷砖之后发现宽度将将够170,那么能塞下更长一档的浴缸当然更好。小J则是压根没当回事 – “不够宽可以挖墙”
水电师傅一开始就给我们设计了所有龙头都从墙里出来,那么浴缸注水就不用在缸体开洞那种。这样清洁方便。洗完之后边沿一抹到底没有死角
我们的旧浴缸的材质是陶瓷的很重很结实,符合我们对浴缸的传统期望。 而现在的材质都用玻璃纤维的,很薄,敲上去有点像塑料,而且寄来的时候表面一层膜看着很乌。我一开始差点想退掉。但又跑了几家卫浴展厅发现大家现在都是这样。也就罢了。最后垫了很多加固的木方,踩上去还是感觉有点变形。所以东西也不是越新越好。当然现在也有买陶瓷的,价格差的不是几倍的问题甚至有十几倍的。重要的是这个尺寸太合适了,卡进去严丝合缝。
至于淋浴的隔挡,正好看到一款和浴缸一起卖在打折,颜色是黄铜,下单之后就连带整个浴室的五金都要选黄铜材质了,也就是最贵的那一档。。。有点像为碟醋包顿饺子。
头顶的淋雨花洒头确实大点更好,30cm够用,有需要的可以上40cm的,看着也非常气派,但是后来发现有个问题是如果不想洗头的话,要把头伸到水幕外面,水幕太大其实有点浪费。。。
而最惊喜的一个设计也是来自水电师傅,他建议我们把水流中控面板放到浴缸中间的位置而不是花洒底下的墙上。理由是可以避免玻璃隔挡阻碍,站在浴缸外面就能开水,等热水出来再脱衣服进去。对比之下如果放到尽头的墙上,从外面是够不到的,需要先进浴缸开开花洒,在里面等水热,总是有点不便。而且放在底下淋着会留下水渍。还有如果泡澡的话也不用起身去够脚底那侧的开关去关水。 这真是考虑的非常周到了,很开心的采纳了师傅的建议。最后证明确实方便很多。
而中控是值得投入的一个关键设备,我们需要的是三水路控制 - 头顶花洒,侧面的手持喷头,浴缸的注水龙头。而对于combi boiler很重要的是恒温功能,这样在外面用水的时候里面的水温不会突然下降。可以多花点钱但绝对物有所值。
师傅安好浴缸后也像国内装修那样存半缸水等了三天做闭水测试,虽然我觉得没什么必要但还是要为师傅的专业点赞
整体效果我在瓷砖那篇放出来
确实啥都贵,如果自己能干些,能省不少。
这帖子会成为25年度最佳贴,加油。
会的会的,我自己做的部分在后面。 ![]()





































